Logement senior à Saillenard (71580) - La Sauvagette

7771746330558614723
1965694766682784732
5575826230923999472
3675392993208510239

Une résidence seniors en cours de construction

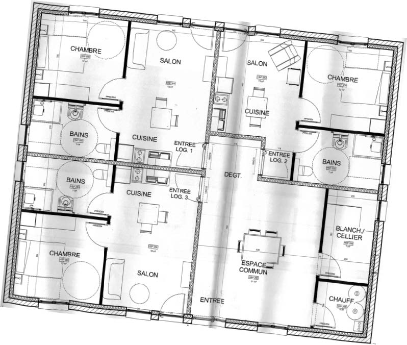
La résidence La Sauvagette proposera à l’automne 2026 trois logements seniors à Saillenard, spécialement conçus pour des personnes autonomes souhaitait vivre dans un environnement calme, adapté et sécurisé.

Ce projet à taille humaine constitue une alternative idéale aux structures plus importantes, en privilégiant confort, indépendance et sérénité. Chaque logement est adapté aux personnes à mobilité réduite (PMR) et bénéficie d’un accès plain pied, d’un environnement paisible et d’une implantation idéale, à proximité de Louhans, de Lons-le-Saunier et de Bletterans.

Modélisation 3D de la future résidence à Saillenard

Des logements seniors fonctionnels et confortables

Loué non meublé pour vous permettre de conserver vos repères et effets personnels, nos logements sont spécialement imaginé pour les seniors autonomes en quête d’un logement adapté et sécurisé. Nous acceptons également les animaux de compagnie. Une présence régulière, mais pas envahissante, vous accompagne dans votre quotidien : ménage, courses, démarches…

Avec seulement trois logements, notre résidence seniors permet de bien vieillir, de conserver son intimé, son autonomie tout en évoluant dans un cadre rassurant avec une réelle proximité humaine. Ce format à dimension humaine constitue un atout pour les seniors recherchant un logement en Saône-et-Loire, sans l’anonymat des grandes résidences.

La Résidence La Sauvagette est composée de 2 logements de 38 m² chacun proposé à la location pour un montant de 1 050€/mois (700€ de loyer, 350€ de services) et 1 logement de 35 m² proposé à 1000€/mois (650€ de loyer, 350€ de services). Un supplément de 50€/mois sera demandé pour les services si la location est effectuée par un couple.

Un lieu pensé pour bien vieillir

Choisir de quitter son logement pour intégrer une résidence senior est une étape importante, parfois chargée d’émotions. Notre résidence à taille humaine, composée de seulement trois logements, offre un cadre chaleureux et intimiste, où chaque résident est connu et accompagné de manière personnalisée. Une personne veille au quotidien au bien-être et à l’autonomie de chacun, apportant soutien et assistance selon les besoins.

Au quotidien, nous proposons un programme riche d’activités et de sorties organisées. Ici, chaque journée est pensée pour combiner sécurité, confort et plaisir, tout en favorisant le lien social et le sentiment d’appartenance.

Vivre dans notre petite résidence, c’est profiter d’un environnement humain et rassurant, où bien vieillir rime avec sérénité, activité et accompagnement sur mesure.